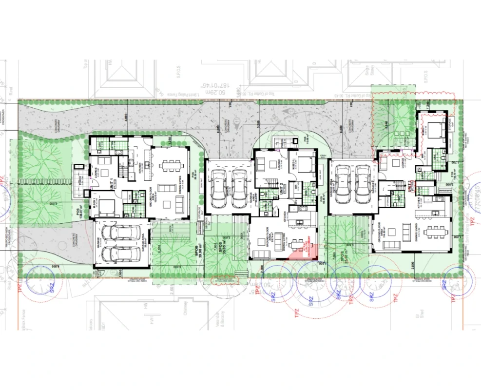
Nonda Avenue Doncaster East

Project Land

654 SQM

Project Design

2 Townhouses

Project Value

3 Million

Completion Year

2019

More Info

Introduction to the Villa

Defined by its sophisticated style and superbly crafted design, this brand-new villa optimises natural light and palatial proportions across two impressive levels.

Location and Lifestyle

Boasting a stellar position, the stunning fully brick fenced abode is securely set at the front of only 2 homes, offering a superior lifestyle amid cafes, restaurants, leading schools and lush parklands.

Interior and Living Space

A crisp white decor welcomes spacious open-plan living and dining where a premium stone-topped kitchen featuring s/s appliances, soft-close cabinetry, gas cooktop, breakfast bar and spacious butler’s pantry merges beautifully to create an impeccable, abundantly lit space to spend time cooking for loved ones or entertaining family and friends.

Outdoor Enjoyment

Enjoy after 5 beverages on the elevated timber veranda while admiring the private courtyard and its established low-maintenance garden.

Bedrooms and Bathrooms

A guest bedroom is placed on the lower level with BIR. A flawless fully tiled powder room enhances the ground floor. The upper-level showcases views to the rolling ranges with a sizeable open study area perfect for children.

Master Suite and Additional Bedrooms

The master is spacious in size with a WIR and flawless ensuite presenting a deluxe double frameless shower. Bedrooms 3 and 4 include BIRs and gleam with gorgeous natural light as does the contemporary family bathroom boasting a relaxing bath tub.

Local Amenities and Schools

Reap the benefits of living in such a highly-sought locale surrounded by elite schools, including: walking distance to Donburn PS, close to Milgate PS, Carey Baptist Grammar and East Doncaster SC zone. The lively shopping strip of Donburn is just a short stroll away with The Pines and Westfield nearby.

Additional Features and Summary

Indulge in the refreshing parklands of Ruffey Lake Park or Zerbes Reserve. City buses and freeway are within easy reach. An infinitely stylish home offering a remarkable lifestyle opportunity with enhancements including ducted heating, split system, reverse cycle heating/cooling upstairs, spacious laundry with cabinetry, downlights throughout, video intercom and remote DLUG.